Skip to main content

Projektet


Det første projekt skal ligge i Højby, Odsherred kommune

Her skal bygges 76 huse i 2 størrelser, hvor de fleste huse er den mindste type, samt et større fælleshus, som det første pilot projekt.

Som yderbeklædning har vi valgt naturskifer og træ.

Naturskifer, der er en stenart, der er dannet af kvarts, ler aflejringer og mineralet glimmer, som gennem millioner af år har været udsat for et kolossalt stort tryk. 

Den lagdelte struktur gør at produktet kan brydes i plader, og derved anvendes til facadebeklædning. 

Det er et 100 % naturligt, langtidsholdbart, rent og eksklusivt
byggemateriale med ekstremt gode egenskaber imod vejr, vind og brand. 

Det indeholder ikke skadelige stoffer, og skal ikke afrenses eller males. Farven blegner aldrig. 

Levetiden på naturskifer er på mere end 100 år. Skiferen findes i naturen og skæres direkte ud af klippen. Det er et af de mest miljø-og klima venlige materialer man kan få. 

Der er valgt fjernvarme som varmekilde, fordi Højby Fjernvarme har bygget en ny varmepumpe for Højby i 2018/19, og da strømmen vil langt overvejende blive grøn, via solceller på tagene, samt batterier installeret som et fællesanlæg, kan det siges uden forbehold, at strøm og varmeproduktion er rigtig grøn. 

Hvorfor Odsherred kommune?

Odsherred har Danmarks ældste befolknings sammensætning for en større kommune, hvor mere end 50% af kommunens befolkning er +50 år, og da Odsherred kommune samtidig gennem en del år har været underforsynet med private lejeboliger, danner denne kombination et godt grundlag for at placere et seniorbofællesskab netop her, hvor kunderne til et sådant projekt i ‘SeniorDanmark’ bor, og som oftest ønsker at blive boende.

Højby er en stationsby i Odsherred kommune, med kommunekontoret og to 18 hullers golfbaner, ca. 6 km vest fra hovedbyen i kommunen Nykøbing Sjælland. 

Indenfor en radius af 8 km er der mere end 8.000 indbyggere, samt tæt beliggende ved Danmarks største sommerhusområde, hvor mere end 2.000 pensionister bor året rundt.

Byen ligger tæt ved vejnettet til både København og Århus, samt tilsvarende bus- og togforbindelser. DEN har ligeledes de nødvendige butikker til det daglige indkøb.

Istidslandskabet, kysterne, kunstnerne, råvarerne og kulturhistorien er områdets styrke og stolthed. Og her er naturen ikke noget, man tager på udflugt til. Det er noget, man åbner døren til.

Det er der mange, der har fundet ud af. Odsherred er Danmarks første UNESCO Geopark. Det bølgede og bakkede istidslandskab med 160 km afvekslende kystlinje skaber en smuk og inspirerende ramme for at bo, leve og arbejde.

I sæsonen får de 33.000 borgere i kommunens 12 by- og landsbysamfund besøg af over 100.000 fritidshusejere og turister.

Det gør egnen til Danmarks største fritidskommune med et liv og et fællesskab, som appellerer til aktivitet hele året.

Visualiseringer

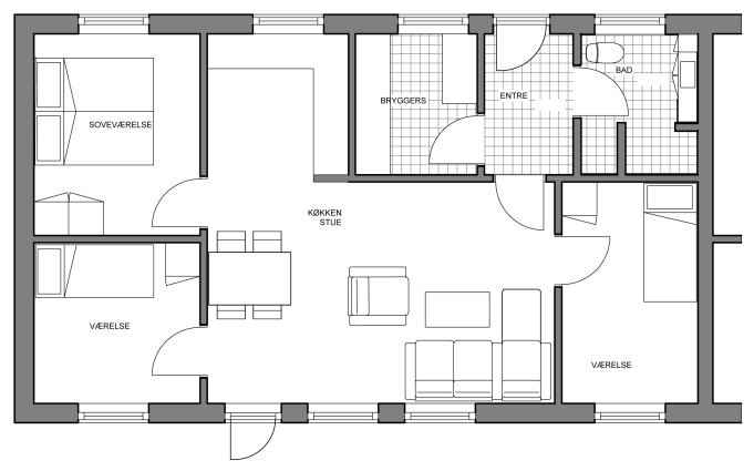
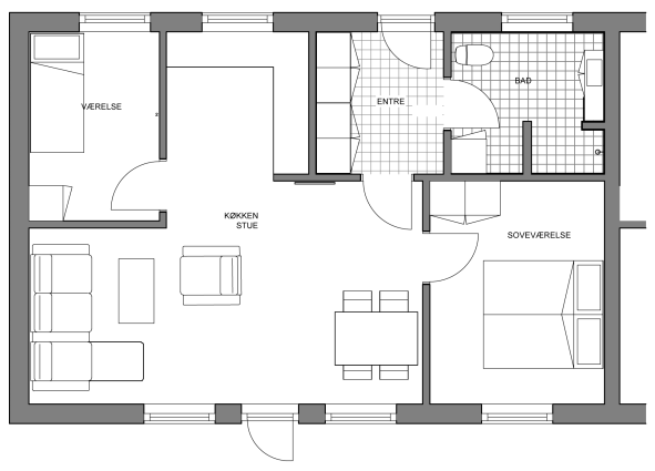
Planløsning

Type 72

Type 82

Situationsplan